837.00 m2
189.00 m2
4
4
4
7
Villa 6.5 pièces 189.00 m2 - Crans-Montana
Découvrez cette splendide villa de 6.5 pièces, située à Randogne, dans une rue calme et sans issue. Elle est accessible par la route de Ponteille menant à une impasse. Elle bénéficie d'une vue panoramique imprenable.
Implantée sur un terrain de 837 m2 à 1'180 mètres d'altitude, elle est à 9 minutes du centre de la station de Crans-Montana, idéal pour profiter de tous les avantages de la station, mais avec une discrétion et une quiétude sans égal
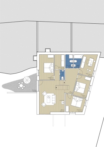
Elle est répartie sur 3 niveaux. Exposée plein sud, cette maison sans vis-à-vis offre un cadre de vie idéal pour une famille. Elle se compose, entre autres, d'un garage double, 4 salles d'eau, 4 chambres à coucher, dont une suite parentale de 24 m2, une grande pièce aménageable et un espace de vie séjour/cuisine/salle-à-manger de 70 m2 habitables.
La maison vous offre également de précieux espaces de rangement (un économat et une cave de 13 m2) ainsi qu'un espace extérieur agréablement aménagé en terrasse et jardin. De quoi envisager de bons moment de convivialité et de détente en famille et entre amis à l'occasion des beaux jours !
A votre service pour tout renseignement complémentaire ou pour une éventuelle visite.
Du rêve... à la réalité !
Implantée sur un terrain de 837 m2 à 1'180 mètres d'altitude, elle est à 9 minutes du centre de la station de Crans-Montana, idéal pour profiter de tous les avantages de la station, mais avec une discrétion et une quiétude sans égal
Elle est répartie sur 3 niveaux. Exposée plein sud, cette maison sans vis-à-vis offre un cadre de vie idéal pour une famille. Elle se compose, entre autres, d'un garage double, 4 salles d'eau, 4 chambres à coucher, dont une suite parentale de 24 m2, une grande pièce aménageable et un espace de vie séjour/cuisine/salle-à-manger de 70 m2 habitables.
La maison vous offre également de précieux espaces de rangement (un économat et une cave de 13 m2) ainsi qu'un espace extérieur agréablement aménagé en terrasse et jardin. De quoi envisager de bons moment de convivialité et de détente en famille et entre amis à l'occasion des beaux jours !
Détails des pièces
- Balcon | Loggia : 2
- Buanderie privée
- Cave | Cellier
- Coin-repas
- Cuisine
- Cuisine avec coin repas
- Economat
- Local technique
- Réduit / Rangement
- Salle de jeu
- Séjour
- Terrasse
Chambres
- Chambre double / parentale : 1
- Chambre simple / enfant : 3
Salles d'eau
- Salle de bain : 1
- Salle de douche : 2
- Total WC : 4
- WC lavabo : 1
Nombre de box, garages et places de parc
- Garage double
- 2
- Place de parc extérieure
- 3
Environnement
- Calme | Tranquille
Vue
- Imprenable
- Panoramique
- Sur la vallée
- Sur les montagnes
Exposition
- Sud
Proximité
- Golf
- Pistes de ski
- Remontées mécaniques
- Transports publics
Extérieur
- Aménagé
Equipement primaire
- Canalisations
- Réseau communal
- Eau
- Réseau communal
- Energie
- Réseau électrique
- Energie secondaire
- Solaire photovoltaïque
Equipement technique
- Chauffage principal
- Pompe à chaleur air-eau
- Internet
- Oui
- Lave-vaisselle
- Oui
- Mode de chauffage
- Au sol
- Porte du garage électrique
- Oui
A votre service pour tout renseignement complémentaire ou pour une éventuelle visite.
Du rêve... à la réalité !
| Référence | PRO-12994 |
| Destination | À Vendre |
| Situation | Villas |
| Disponibilité | mar, 12/01/2026 - 00:00 |
| Prix | CHF 2'050'000.- |
| Nombre de pièces | 6.5 |
| Surface habitable | 189.00 m2 |
| Surface du terrain | 837.00 m2 |
| Vue dégagée | |
| Parking | |
| Balcon | |
| Internet | |
| Nombre d’étages | 3 |
| Année de construction | 2026 |











